Del Viernes, 13 de Febrero de 2026 al Miércoles, 18 de Febrero de 2026
La Universidad de Salamanca tiene querer, antes del verano, el proyecto de la ampliación del campus de Ávila, que incluye un polideportivo, según el rector, Juan Manuel Corchado, que espera sea realidad "en dos o tres años". El rector ha insistido en su intención de doblar el número del alumnado, además de poner en marcha nuevas titulaciones y un instituto de investigación.
El campus universitario de Ávila encadena cuatro años consecutivos de aumento de matrícula y este curso ha registrado la cifra más alta de su historia, con 1.844 estudiantes matriculados en sus centros (Facultad de Educación y Turismo, Escuela Politécnica Superior y Escuela de Enfermería). De ellos, 716 corresponden a alumnado de primer curso.
Estos datos sitúan al campus abulense en cifras similares a las del campus de Zamora. A partir de esta base, el rector sostiene que el margen de expansión es amplio: “con muchas posibilidades de crecimiento, pudiendo doblar sus números gracias a la implantación de nuevas titulaciones y a la mejora de las instalaciones, así como a la puesta en marcha de nuevos proyectos en el ámbito de la investigación” del Centro Internacional en Industria Geoespacial y Geoinformática (Geocenter) y la extensión del Centro de Investigación y Desarrollo Tecnológico del Agua (CIDTA).
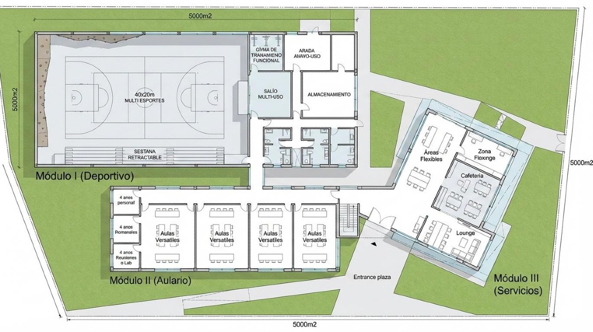
El campus contará con la construcción de un polideportivo y la creación de nuevos espacios de estudio, docencia, emprendimiento y transferencia tecnológica. Así lo ha trasladado el rector de la Universidad de Salamanca, Juan Manuel Corchado, en una reunión de trabajo celebrada en la Facultad de Educación y Turismo de Ávila, en la que detalló los planes de inversión vinculados al plan extraordinario financiado por la Junta hasta 2031.
La iniciativa se enmarca en el programa extraordinario de inversiones que prevé una aportación global de 43 millones de euros a la institución académica. Según la información trasladada por el equipo rectoral, la inversión contemplará tanto la reforma y modernización de las instalaciones actuales como la construcción de nuevos edificios. Entre ellos figura un polideportivo y nuevos espacios destinados al estudio, la docencia y el emprendimiento.
Posibilidades
Corchado explicó que ya se trabaja sobre las posibilidades físicas del recinto universitario, “viendo los espacios existentes y posibilidades del campus”. El campus “pasará de una gran parcela con dos edificios a un campus integral con espacios conectados para que los estudiantes, la comunidad de Ávila en general y los grupos de investigación y profesorado puedan disfrutar de las infraestructuras y hacerlo de forma cómoda y desarrollar su trabajo de forma eficiente”.
En la misma línea, Corchado subrayó el alcance cuantitativo del objetivo: “Vamos a empezar a trabajar en dos diseños de los nuevos edificios, las nuevas aulas y centros de emprendimiento y también trasferencia tecnológica y pensamos traer algún instituto de investigación a este campus”, con lo que “vamos a dar un buen lavado de cara para que el número de estudiantes de Ávila pase de los casi 2.000 actuales a los 4.000 ó 5.000 en unos cuantos años”.
El calendario previsto pasa por culminar el diseño de los nuevos edificios antes del verano. A partir de ese momento se iniciarían los procesos de licitación y ejecución. “Esperamos que esto sea una realidad tener el diseño de lo que queremos hacer antes de verano para, a partir de ahí, comenzar las licitaciones y en dos o tres años ver estos edificios en marcha”, afirmó el rector.
La reunión en la que se abordaron estos planes contó con la participación de responsables académicos y de gestión del campus, entre ellos la decana de la Facultad de Educación y Turismo, María Isabel López; la dirección de la Escuela Politécnica Superior y de la Escuela de Enfermería; y representantes del Grupo de Investigación Reconocido TIDOP (Tecnologías de la Información para la Digitalización Inteligente de Objetos y Procesos).
MÁS FOTOS ABAJO ⬇️









Universidad | Lunes, 16 de Febrero de 2026 a las 21:23:16 horas
Me parece genial que amplíen y mejoren las instalaciones. También deberían mejorar la calidad de la enseñanza universitaria, ya que todavía hay asignaturas que no tienen profesores, controlar las faltas de asistencia del profesorado, que a lo largo del cuatrimestre a veces son escandalosas, y valorar a los estudiantes de manera individual, no sólo con trabajos en grupo, porque al final, unos sacan las carreras gracias al trabajo de otros. En el grado de Infantil y Primaria, quizás también los alumnos deberían superar test psicológicos antes de entrar en esta carrera universitaria tan importante y tan seria como es tratar con niños.
Esta es una universidad de prestigio, no lo pierdan.
Accede para votar (0) (0) Accede para responder